欢迎来到安平县秉德丝网制品有限公司网站!

湖北汉江新港港口码头钢丝网围墙专业生产厂家
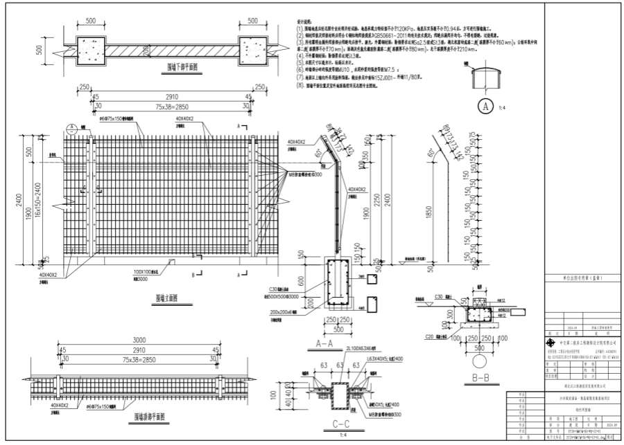
设计说明:
(1).围墙地基应经总图专业处理并经试验,地基承载力特征值不小于120KPa、地基压实系数不小于0.94后,方可进行围墙施工。
(2).钢材焊接及焊接材料应符合《钢结构焊接规范》GB50661-2011 的有关技术规定:焊缝应满焊并均匀,不得有裂缝,过烧现象。
(3).所有露明金属件焊接部分焊蜂均应挫平、磨光,外露钢材面:除锈要求达到S2.5级或St3级,刷无机富锌底漆二度 (漆膜厚不小于60微米):云铁环氧中间漆二度( 漆膜厚不小于70微米):面刷灰色氯化橡胶防腐漆二度( 漆膜厚不小于80微米,总漆膜厚度不小于210微米。
(4).不外露钢材面:除锈要求达到St3级。
(5).本图尺寸以毫米计,标高以米计。
(6).砖墙部分砖的强度等级MU10 水泥砂浆的强度等级M7.5。
(7).地面以上墙内外采用涂料饰面,做法参见中南标15ZJO01- 外墙11/80页。
(8).围墙平面位置及室外地面高程详见总图专业图纸。